CONTACTEZ-NOUS DÈS MAINTENANT POUR RECEVOIR UN DEVIS RAPIDE, UN SUPPORT D'ÉCHANTILLONNAGE ET UNE GARANTIE DE SERVICE D'INGÉNIERIE.

Façade en panneaux d'aluminium perforés sur mesure pour bâtiments commerciaux

Dingchengzun customized perforated aluminum panel facades provide a modern and practical exterior solution for commercial buildings. Designed for curtain wall, facade cladding, and architectural screening applications, these panels are suitable for office buildings, shopping centers, public facilities, and other projects that require both visual impact and functional performance.

Made from high-quality aluminum, the panels are lightweight, corrosion-resistant, and suitable for long-term outdoor use. The perforated design adds depth and character to the building envelope while also supporting shading, airflow, and a more refined facade effect. This makes the system a strong choice for contemporary commercial architecture that values both appearance and usability.

To suit different project needs, Dingchengzun perforated aluminum facade panels are available in various hole patterns, colors, finishes, and custom specifications. Whether the design focuses on architectural identity, decorative screening, or durable exterior performance, this facade system offers a flexible and reliable solution for commercial building applications.

 

Looking for Custom Aluminum Ceilings and Facades? Let's Talk

Product Application Showcase

 

Designed for modern commercial architecture, customized perforated aluminum panel facades create a clean, distinctive, and visually structured exterior for building envelopes. They are well suited for office buildings, shopping centers, public facilities, and other commercial projects that require both architectural character and practical facade performance.

Made from high-quality aluminum, these panels are lightweight, durable, and corrosion-resistant, making them suitable for long-term outdoor use. A wide range of perforation patterns, colors, finishes, and panel specifications is available to support different design concepts and project requirements.

The perforated structure also helps improve shading, airflow, and decorative screening performance while allowing greater flexibility in facade design and installation. For commercial building projects that value durability, visual impact, and customization, this facade system offers a reliable and adaptable solution.

Product Installation

 

 

  

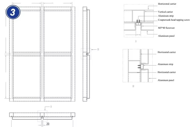
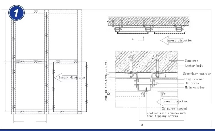
Curtain Wall Aluminum Panel Installation Instruction

Install the brackets and supporting frame according to the facade drawings, and ensure all fixing points are positioned accurately and kept at the correct level. Secure the substructure firmly to provide stable support for the curtain wall aluminum panel system.

Check and adjust the frame carefully to make sure it is level, straight, and properly aligned before installing the panels. Then install the aluminum panels in the planned sequence, ensuring each panel is fixed securely and the joint lines remain neat, even, and consistent.

Prepare reserved positions in advance for corners, edges, openings, and sealant joints. After installation, inspect the panel alignment, joint treatment, and overall stability to ensure a clean, secure, and uniform facade finish.

Pattern Selection

Color Selection

The finishes shown here represent only part of the surface treatment options available for Dingchengzun curtain wall aluminum panel systems. We offer a wider range of finish choices for aluminum panel facade applications, helping clients achieve different architectural effects and meet various project requirements. These surface treatments are developed to enhance appearance, durability, and suitability for different exterior and interior environments.

Click the button below to explore more finish options. Dingchengzun supports project-based finish selection and customization for curtain wall aluminum panels to match different architectural styles and application needs.

‌Frequently Asked Questions‌
1
What Custom Specifications Are Available For Perforated Aluminum Panel Facades?
Dingchengzun offers various panel sizes, thicknesses, perforation patterns, and custom fabrication options to meet different commercial facade requirements.
2
Can The Facade Panels Be Customized In Color And Surface Finish?

Yes. Different colors, coatings, and surface finishes are available to match specific architectural styles and project design needs.

3
Are These Perforated Aluminum Panels Suitable For Different Commercial Building Projects?

Yes. They are widely used for office buildings, shopping centers, public facilities, and other commercial projects that require both decorative appearance and functional facade performance.

4
Can Dingchengzun Provide Project-Based Facade Solutions?

Yes. Dingchengzun can provide customized panel solutions based on facade drawings, layout requirements, and installation needs.

5
Are Samples And Technical Support Available Before Ordering?

Yes. Samples, installation information, and relevant material details can be provided to support project evaluation and quotation review.

Intéressé(e) ?
Demander à être appelé par un spécialiste
Des solutions sur mesure pour vos projets de plafonds et de murs métalliques. Obtenez une solution complète pour vos projets personnalisés de plafonds et de murs métalliques. Bénéficier d'une assistance technique pour la conception, l'installation et la correction des plafonds et murs métalliques.